コンシェリア西新宿タワーズウエスト 外観

コンシェリア西新宿タワーズウエスト

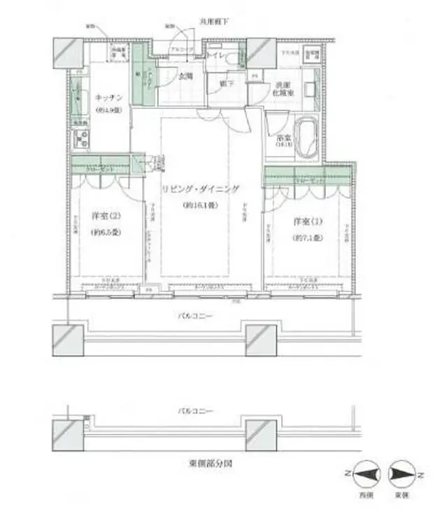
新宿区・西新宿五丁目駅 徒歩6分・築18年

上位3%
4.64
上位3%
コンシェリア西新宿タワーズウエスト

イエシルの販売情報とは

イエシルでは、WEB上で公開されているマンションの販売情報を独自に収集し...

PR近隣の販売中物件

コンシェリア西新宿タワーズウエスト

投資物件診断

コンシェリア西新宿タワーズウエスト利回り・空室率を診断します。

コンシェリア西新宿タワーズウエストを見た人は、こんな中古マンションも見ています

周辺にある相場が近い物件

新宿区西新宿の人気物件

コンシェリア西新宿タワーズウエストの駅、市区町村、学区を知る

新宿区のマンション

都庁や歌舞伎町が頭に浮かぶ新宿区ですが、学生が多い高田馬場、高級料亭が連なる神楽坂、予備校が乱立する四谷など、地域によって雰囲気がまったく異なります。また、新宿区はもっとも外国人登録者が多い地区として有名で、とくに大久保周辺は小さなエリアに外国人居住者が数多く暮らしている独特な地域です。新宿区のマンションは高層マンションが連なるエリアと、一戸建てや低層マンションが多いエリアが混在し、全体的に雑多な印象を持つ地域といえます。各施設数も多いため、ショッピングや病院、図書館利用など生活利便性は抜群です。

西新宿五丁目駅のマンション

西新宿五丁目駅は東京都新宿区にあり、都営地下鉄大江戸線を利用することができます。新宿という都心にあるためショッピングにも便利ですし、遊ぶところもたくさんあり、この近辺のマンションは大変人気です。近所には明治神宮外苑のほか新宿御苑もあり、緑豊かな土地でもあります。衣食住に便利ですので、おすすめの地域です。

その他の最寄り駅:

新宿区の学区別マンション

小学校:

中学校: