スカイコート品川大崎 外観

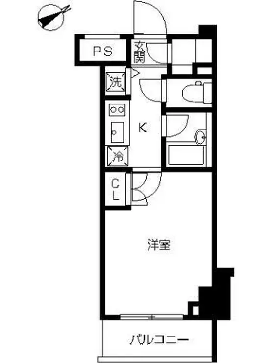
スカイコート品川大崎

品川区・大崎広小路駅 徒歩4分・築17年

上位5%
4.41
上位5%

販売中(0件)

販売中の物件はありません
この条件の物件をお探しですか?
無料登録をすると閲覧履歴に基づく販売情報をお知らせします。
お知らせを受け取る
スカイコート品川大崎

イエシルの販売情報とは

イエシルでは、WEB上で公開されているマンションの販売情報を独自に収集し...

PR近隣の販売中物件

スカイコート品川大崎

投資物件診断

スカイコート品川大崎利回り・空室率を診断します。

スカイコート品川大崎を見た人は、こんな中古マンションも見ています

スカイコート品川大崎の駅、市区町村、学区を知る

品川区のマンション

治安がよくリバーサイドとして人気の品川区のマンション。再開発エリアとして新幹線の停車駅となってから、大きく注目を集めるようになりました。この影響で新築マンションよりも中古マンションにプレミア感を感じる方も多いようです。また、品川駅以外にも大崎、大井町、戸越なども住みやすい地域として人気です。どの地区もビジネス街と住宅街がうまく調和している地域特性があり、駅前の商業施設の充実から利便性を感じる方も多いようです。また、品川区では子ども・子育て支援新制度を設けており、認定こども園という品川区独特の制度で子育て環境の改善を推進している地域です。