パークアクシス代官山 外観

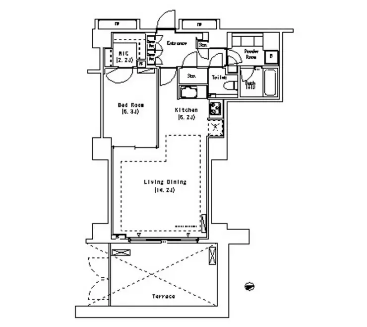
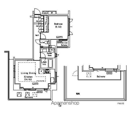
パークアクシス代官山

渋谷区・代官山駅 徒歩4分・築17年

上位3%
4.69
上位3%

販売中(0件)

販売中の物件はありません
この条件の物件をお探しですか?
無料登録をすると閲覧履歴に基づく販売情報をお知らせします。
お知らせを受け取る
パークアクシス代官山

イエシルの販売情報とは

イエシルでは、WEB上で公開されているマンションの販売情報を独自に収集し...

PR近隣の販売中物件

パークアクシス代官山

投資物件診断

パークアクシス代官山利回り・空室率を診断します。

パークアクシス代官山を見た人は、こんな中古マンションも見ています

パークアクシス代官山の駅、市区町村、学区を知る

渋谷区のマンション

若者の街というイメージが強い渋谷区のマンション。やはり、ワンルームや1kのマンションが多い傾向にあるようです。しかし、渋谷、恵比寿とは別に、国立競技場の印象が強い千駄ヶ谷、住宅街が多い幡ヶ谷、初台も渋谷区に含まれます。ビジネス地域、繁華街、住宅地が過密に混在された地域ですが、交通アクセスは抜群でスーパーなどの小売店舗も点在しているため、生活空間として利便性を感じる居住者の方も多いようです。恵比寿ガーデンプレイスのような複合施設も充実しており、共稼ぎの夫婦や単身者に人気のエリアとなっています。

代官山駅のマンション

代官山駅は東京都渋谷区にあり、東横線が乗り入れています。原宿や表参道と並んでおしゃれなファッションエリアとして知られており、アパレルショップも軒を連ね、カフェ店や書店も充実。一方で、繁華な通りを少し抜けると閑静な住宅街が広がり、西郷山公園・代官山公園をはじめとして緑も多く、大規模マンションも複数あり、都心でありながら非常に住みやすい街となっています。

その他の最寄り駅: