※騰落率・価格推移は201のお部屋を基準に算出
号室 | 参考相場価格 | 成約の妥当価格 | 新築時価格 | 想定賃料 | 間取り | 専有面積 主要採光面 |
|---|---|---|---|---|---|---|
| 201 | 2,350万円 | 価格を確認する | 2,050万円 | 8.9万円/月 | 1K | 20.49m² - |
| 202 | 2,096万円 | 価格を確認する | 1,900万円 | 9.2万円/月 | 1R | 18.09m² - |
| 203 | 2,254万円 | 価格を確認する | 1,950万円 | 8.4万円/月 | 1K | 19.50m² - |
| 204 | 2,303万円 | 価格を確認する | 1,990万円 | 8.7万円/月 | 1K | 19.93m² - |
| 205 | 2,180万円 | 価格を確認する | 1,880万円 | 8.5万円/月 | 1K | 18.87m² - |
部屋別の参考相場価格とは
※表示価格は弊社独自の参考相場価格であり、実際の価格とは異なります。※こ...


顧客満足度 No.1を受賞しました!
年月 | 価格 | m²単価 | 階数 | 専有面積 | 間取り | 当時の築年数 |
|---|---|---|---|---|---|---|
| ????/?? | ??????万円 | ???万円/m² | ??階 | ??.??m² | ??? | 築??年 |
| ????/?? | ??????万円 | ???万円/m² | ??階 | ??.??m² | ??? | 築??年 |
| 2018/12 | 成約1,640万円 | 86万円/m² | 6階 | 18.87m² | 1K | 築17年 |
| 2017/10 | 成約1,840万円 | 97万円/m² | 7階 | 18.87m² | 1R | 築16年 |
| 2017/07 | 成約1,700万円 | 85万円/m² | 11階 | 19.93m² | 1K | 築16年 |
| 2008/09 | 成約1,920万円 | 101万円/m² | 9階 | 18.87m² | 1K | 築7年 |
| 2008/09 | 成約1,900万円 | 95万円/m² | 5階 | 19.93m² | 1K | 築7年 |
| 2001/05 | 新築3,060万円 | 99万円/m² | 13階 | 30.78m² | 1K | -- |

売買履歴とは
リブセンスが独自に収集・提供を受けた情報をもとに、成約価格・新築分譲価格...
みんなで作るイエシル
イエシルは価格の情報を収集中です。成約価格、販売価格をご存じの方はご協力よろしくお願いします。協力する
年月 | 価格 | m²単価 | 階数 | 専有面積 | 間取り | マンション名 | 当時の築年数 |
|---|---|---|---|---|---|---|---|
| 2026/03 | 成約2,800万円 | 121万円/m² | 9階 | 23.02m² | 1K | ブライズ東新宿 | 築21年 |
| 2025/12 | 成約2,000万円 | 107万円/m² | 9階 | 18.69m² | 1K | プレール新宿余丁町 | 築25年 |
| 2024/01 | 成約3,470万円 | 100万円/m² | 1階 | 34.44m² | 1R | ラグジュアリーレジデンス新宿ソラーレ | 築19年 |
| オススメ | クレアシオン市ヶ谷西の 最新の価格を知りませんか?今いくらで売れるか、相場がわかります。 | 現在の成約の妥当価格を知る | |||||
| 2023/09 | 成約5,780万円 | 84万円/m² | 2階 | 68.66m² | 2LDK | 新宿余丁町パーク・ホームズ | 築25年 |
| 2023/08 | 成約3,800万円 | 100万円/m² | 5階 | 38.00m² | 1R | ラグジュアリーレジデンス新宿ソラーレ | 築19年 |
| 2020/10 | 成約1,600万円 | 85万円/m² | 9階 | 18.69m² | 1K | プレール新宿余丁町 | 築20年 |
| 2020/01 | 成約3,080万円 | 77万円/m² | 11階 | 39.56m² | 1R | ラグジュアリーレジデンス新宿ソラーレ | 築15年 |
| 2019/10 | 成約3,270万円 | 87万円/m² | 10階 | 37.55m² | 1LDK | ラグジュアリーレジデンス新宿ソラーレ | 築15年 |
| 2019/03 | 成約3,000万円 | 75万円/m² | 9階 | 39.56m² | 1R | ラグジュアリーレジデンス新宿ソラーレ | 築14年 |
| 2018/07 | 成約5,270万円 | 84万円/m² | 5階 | 62.56m² | 2LDK | 新宿余丁町パーク・ホームズ | 築20年 |

周辺マンションの売買履歴とは
リブセンスが独自に収集・提供を受けた情報をもとに、成約価格・新築分譲価格...資産性スコアとは
各マンションの参考相場価格の推移や㎡単価など、様々な角度から分析し、イエ...新築騰落率
115%築24年新築時価格
2,050万円+300万円新築騰落率とは
新築時騰落率とは、各部屋の新築時販売価格から現在の参考相場価格を比較した...参考相場価格
2,350万円62万円前年比
価格推移と将来予測とは
機械学習から算出された参考相場価格の過去記録と将来予測をグラフに表したも...交通の利便性
若松河田
駅周辺は閑静な住宅街で、都心のざわついた雰囲気がなく落ち着いていますが、都心へのアクセスは抜群なので、静かな環境と利便性を両立したい人には最適です。
教育環境
曙橋
幼稚園や学校が多く、公園もたくさんあるので子どもがのびのびと過ごせる環境だと思います。駅にはスロープやエレベーターもあり、ベビーカーでも利用しやすいです。
子育て環境
新宿区は4年連続で待機児童ゼロを達成していて、保育園の入園に関して安心感があります。延長保育の実施率も100%で、夜間や休日保育も利用できるので、共働き家庭にはとても助かる環境だと感じます。
地域コミュニティ
新宿区は子育て世帯も多く、保育園や小学校が充実しているので、子どもを育てる環境としても安心感があります。
口コミとは
実際の利用者の声をもとにAIが生成した参考コンテンツです。口コミの内容は...このマンションは都営大江戸線若松河田駅から徒歩8分の距離にあります。最寄駅までは少し距離がありますが、ビジネス・ショッピングの拠点となるターミナル駅である新宿駅へも乗車時間10分以内でアクティブにお出かけしたい方には最高の環境です。築24年で比較的あたらしく、SRC造り、13階建て総戸数56戸のマンションです。 ショッピングや食事を楽しめるサブナードに近いマンションです。ファッションアイテムを扱う店舗が充実しており、流行を取り入れたコーディネートが可能です。また、和食や洋食、カフェなど、幅広いジャンルの飲食店が存在するため、好みに合った食事ができます。
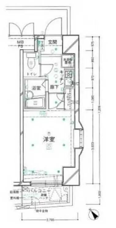
| 建物名 | クレアシオン市ヶ谷西(クレアシオンいちがやにし) |
|---|---|
| 住所 | 東京都新宿区余丁町14-4 |
| アクセス | |
| 築年数 | 築24年 |
| 階建(総戸数) | 13階建(56部屋) |
| 建築構造 | SRC造 |
| 専有面積 | 18.09㎡〜30.78㎡ |
| 新築時価格 | 1880万円〜3070万円 |
| 参考相場価格 |
|
| 参考相場価格の坪単価 | 379万円/坪〜392万円/坪 |
| 想定賃料 | 8.4万円〜10.8万円/月 |
| 敷地利用権 | 土地権利:所有権 借地期限:- 地代(月額㎡単価)※1:- |
| 用途地域 | 第一種住居地域 |
| 資産性スコア |
| 共用部 |
|
|---|
| 駐車場 | -台 駐車費※1:-/月 ~ -/月 駐車設置率:-% |
|---|---|
| バイク置き場 | -台 駐車設置率:-% |
| 駐輪場 | -台 駐輪場設置率:-% |
| 管理会社 | ユニオンシティサービス㈱ |
|---|---|
| 管理費※1 | 月-円/m² |
| 修繕積立金※1 | 月-円/m² |
| 管理準備金※1 | -円/m² |
| 修繕積立一時金※1 | -円/m² |
※管理費や修繕積立金、地代の正確な金額は各管理会社にてご確認ください。
※1 新築時の金額になります。
| 間取り | 専有面積 (中央値) | 参考相場価格 (中央値) | 若松河田駅 平均 |
|---|---|---|---|
| 1R | 18.99m² | 2,214万円 | 2,241万円 |
| 1K | 19.93m² | 2,307万円 | 2,716万円 |

ガレリア グランデ
2LDK 江東区・有明テニスの森駅

オークプレイス豊洲
3LDK 江東区・豊洲駅

ザ コスギタワー
2LDK 川崎市中原区・武蔵小杉駅
※各物件の新築時の販売価格を想定購入価格として表示しています。
都庁や歌舞伎町が頭に浮かぶ新宿区ですが、学生が多い高田馬場、高級料亭が連なる神楽坂、予備校が乱立する四谷など、地域によって雰囲気がまったく異なります。また、新宿区はもっとも外国人登録者が多い地区として有名で、とくに大久保周辺は小さなエリアに外国人居住者が数多く暮らしている独特な地域です。新宿区のマンションは高層マンションが連なるエリアと、一戸建てや低層マンションが多いエリアが混在し、全体的に雑多な印象を持つ地域といえます。各施設数も多いため、ショッピングや病院、図書館利用など生活利便性は抜群です。
若松河田駅は東京都新宿区にあり、都営地下鉄大江戸線が利用できます。駅のそばに大きなショッピングモール「ハイマート若松」があるので、買い物に困ることはありません。また、付近には高層マンションはほぼなく、低層~中層のマンションが多く存在しています。閑静な住宅街であるため、落ち着いた生活を送るにはもってこいのエリアです。