※騰落率・価格推移は2階のお部屋を基準に算出
号室 | 参考相場価格 | 成約の妥当価格 | 新築時価格 | 想定賃料 | 間取り | 専有面積 主要採光面 |
|---|---|---|---|---|---|---|
| 2階 | 7,266万円 | 価格を確認する | - | 36.4万円/月 | 2LDK | 70.56m² - |
| 3階 | 7,335万円 | 価格を確認する | - | 37.9万円/月 | 2LDK | 70.56m² 南 |
部屋別の参考相場価格とは
※表示価格は弊社独自の参考相場価格であり、実際の価格とは異なります。※こ...


顧客満足度 No.1を受賞しました!
イエシルの販売情報とは
イエシルでは、WEB上で公開されているマンションの販売情報を独自に収集し...年月 | 価格 | m²単価 | 階数 | 専有面積 | 間取り | 当時の築年数 |
|---|---|---|---|---|---|---|
| ????/?? | ??????万円 | ???万円/m² | ??階 | ??.??m² | ??? | 築??年 |
| ????/?? | ??????万円 | ???万円/m² | ??階 | ??.??m² | ??? | 築??年 |
| 2015/08 | 成約2,390万円 | 53万円/m² | 1階 | 44.94m² | 2K | 築34年 |
| 2002/11 | 成約2,450万円 | 43万円/m² | -- | 56.76m² | 4LDK | 築22年 |
| 1995/06 | 成約1,400万円 | 28万円/m² | 2階 | 49.19m² | 2LDK | 築14年 |

売買履歴とは
リブセンスが独自に収集・提供を受けた情報をもとに、成約価格・新築分譲価格...
みんなで作るイエシル
イエシルは価格の情報を収集中です。成約価格、販売価格をご存じの方はご協力よろしくお願いします。協力する
年月 | 価格 | m²単価 | 階数 | 専有面積 | 間取り | マンション名 | 当時の築年数 |
|---|---|---|---|---|---|---|---|
| 2026/03 | 成約6,280万円 | 168万円/m² | 5階 | 37.37m² | 1LDK | ドルミ代々木 | 築47年 |
| 2026/03 | 成約7,999万円 | 145万円/m² | 4階 | 54.95m² | 2LDK | 代々木ロイヤルマンション | 築48年 |
| 2026/02 | 成約5,350万円 | 134万円/m² | 4階 | 39.81m² | 1LDK | ベルテ代々木Ⅱ | 築41年 |
| オススメ | エスタ代々木の 最新の価格を知りませんか?今いくらで売れるか、相場がわかります。 | 現在の成約の妥当価格を知る | |||||
| 2026/02 | 成約2,490万円 | 112万円/m² | 5階 | 22.05m² | 1R | ニューステイトメナー | 築49年 |
| 2026/01 | 成約4,800万円 | 104万円/m² | 4階 | 46.10m² | 2DK | チサンマンション参宮橋 | 築48年 |
| 2026/01 | 成約2,500万円 | 113万円/m² | 9階 | 22.05m² | 1R | ニューステイトメナー | 築49年 |
| 2026/01 | 成約2,200万円 | 90万円/m² | 3階 | 24.32m² | 1K | パルナス代々木 | 築47年 |
| 2026/01 | 成約1億5,400万円 | 163万円/m² | 4階 | 94.44m² | 3LDK | ストークマンション代々木 | 築43年 |
| 2025/12 | 成約2,600万円 | 79万円/m² | 7階 | 32.80m² | 1R | カテリーナ代々木 | 築45年 |
| 2025/11 | 成約7,990万円 | 111万円/m² | 11階 | 71.84m² | 3LDK | バロール代々木マンション | 築45年 |

周辺マンションの売買履歴とは
リブセンスが独自に収集・提供を受けた情報をもとに、成約価格・新築分譲価格...賃貸募集中物件が1件あります
年月 | 賃料 | 階数 | 専有面積 | 間取り | 当時の築年数 |
|---|---|---|---|---|---|
| 2026/01 | 28.5万円/月 | 3階 | 70.56m² | 1LDK | 築45年 |
| 2025/07 | 28.5万円/月 | 3階 | 70.56m² | 1LDK | 築44年 |
| 2025/06 | 17.5万円/月 | 1階 | 45.2m² | 2DK | 築44年 |
| 2025/02 | 23万円/月 | 2階 | 56.76m² | 3LDK | 築44年 |
| 2024/12 | 230万円/月 | 2階 | 56.76m² | 3LDK | 築44年 |
| 2024/11 | 27.9万円/月 | 3階 | 70.56m² | 1LDK | 築44年 |
| 2024/02 | 27.9万円/月 | 3階 | - | 1LDK | 築43年 |
| 2024/02 | 22万円/月 | 2階 | - | 3LDK | 築43年 |
| 2023/10 | 16.5万円/月 | 1階 | - | 2DK | 築43年 |
| 2023/09 | 16.5万円/月 | 3階 | - | 1LDK | 築43年 |

賃貸履歴とは
リブセンスが独自に収集・提供を受けた情報をもとに、各マンションの賃貸募集...資産性スコアとは
各マンションの参考相場価格の推移や㎡単価など、様々な角度から分析し、イエ...新築騰落率
---%築45年新築時価格
---円----万円エスタ代々木 2階 の騰落率データはありません。
新築騰落率とは
新築時騰落率とは、各部屋の新築時販売価格から現在の参考相場価格を比較した...参考相場価格
7,266万円222万円前年比
価格推移と将来予測とは
機械学習から算出された参考相場価格の過去記録と将来予測をグラフに表したも...資産性
南新宿
最近このあたりで新しいマンションが増えてきて、前よりも人が多くなった気がします。新宿まで歩いて行ける距離なのに、駅周辺は静かで落ち着いているので、住みやすさと便利さの両方を感じています。家賃...
交通の利便性
代々木
新宿駅の隣でアクセスは良いですが、中央線快速が停まらないのが残念です。山手線や総武線は便利に使えます。
医療・福祉
渋谷区は医療機関や保育園が整っていて、子どもが急に体調を崩した時も安心して受診できる環境です。
自然環境
代々木公園が近く、週末にはイベントが開催されているので家族で出かけるのが楽しみです。自然も多く、子どもがのびのび遊べる場所があるのは嬉しいです。
口コミとは
実際の利用者の声をもとにAIが生成した参考コンテンツです。口コミの内容は...このマンションは小田急小田原線南新宿駅から徒歩6分の距離にあり、駅からごく近く生活する上で様々なメリットがあります。また、日本最大規模のターミナル駅である新宿駅へも乗車時間3分以内で都心がぐっと近くに感じられます。築45年でRC造り、4階建てのマンションです。
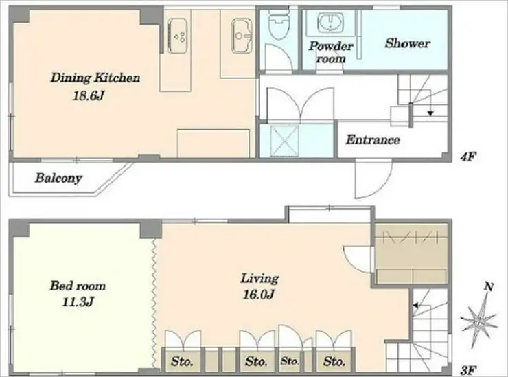
| 建物名 | エスタ代々木 |
|---|---|
| 住所 | 東京都渋谷区代々木3丁目18-5 |
| アクセス | |
| 築年数 | 築45年 |
| 階建(総戸数) | 4階建(-部屋) |
| 建築構造 | RC造 |
| 専有面積 | 70.56㎡〜70.56㎡ |
| 新築時価格 | -万円〜-万円 |
| 参考相場価格 |
|
| 参考相場価格の坪単価 | 340万円/坪〜344万円/坪 |
| 想定賃料 | 36.4万円〜37.9万円/月 |
| 敷地利用権 | 土地権利:- 借地期限:- 地代(月額㎡単価)※1:- |
| 用途地域 | - |
| 資産性スコア |
| 駐車場 | -台 駐車費※1:-/月 ~ -/月 駐車設置率:-% |
|---|---|
| バイク置き場 | -台 駐車設置率:-% |
| 駐輪場 | -台 駐輪場設置率:-% |
| 管理会社 | - |
|---|---|
| 管理費※1 | 月-円/m² |
| 修繕積立金※1 | 月-円/m² |
| 管理準備金※1 | -円/m² |
| 修繕積立一時金※1 | -円/m² |
※管理費や修繕積立金、地代の正確な金額は各管理会社にてご確認ください。
※1 新築時の金額になります。
| 間取り | 専有面積 (中央値) | 参考相場価格 (中央値) | 南新宿駅 平均 |
|---|---|---|---|
| 2LDK | 70.56m² | 7,300万円 | 1億714万円 |

ガレリア グランデ
2LDK 江東区・有明テニスの森駅

オークプレイス豊洲
3LDK 江東区・豊洲駅

ザ コスギタワー
2LDK 川崎市中原区・武蔵小杉駅
※各物件の新築時の販売価格を想定購入価格として表示しています。
若者の街というイメージが強い渋谷区のマンション。やはり、ワンルームや1kのマンションが多い傾向にあるようです。しかし、渋谷、恵比寿とは別に、国立競技場の印象が強い千駄ヶ谷、住宅街が多い幡ヶ谷、初台も渋谷区に含まれます。ビジネス地域、繁華街、住宅地が過密に混在された地域ですが、交通アクセスは抜群でスーパーなどの小売店舗も点在しているため、生活空間として利便性を感じる居住者の方も多いようです。恵比寿ガーデンプレイスのような複合施設も充実しており、共稼ぎの夫婦や単身者に人気のエリアとなっています。