※騰落率・価格推移は1101のお部屋を基準に算出
号室 | 参考相場価格 | 成約の妥当価格 | 新築時価格 | 想定賃料 | 間取り | 専有面積 主要採光面 |
|---|---|---|---|---|---|---|
| 1101 | 3,115万円 | 価格を確認する | 3,390万円 | 10.6万円/月 | 1K | 24.97m² - |
| 1102 | 2,917万円 | 価格を確認する | 3,310万円 | 10万円/月 | 1K | 23.21m² - |
| 1103 | 3,030万円 | 価格を確認する | 3,350万円 | 10.3万円/月 | 1K | 24.13m² - |
| 1104 | 2,967万円 | 価格を確認する | 3,310万円 | 10.1万円/月 | 1K | 23.63m² - |
| 1105 | 2,967万円 | 価格を確認する | 3,310万円 | 10.1万円/月 | 1K | 23.63m² - |
| 1106 | 3,235万円 | 価格を確認する | 3,430万円 | 10.4万円/月 | 1K | 25.95m² - |
| 1107 | 2,933万円 | 価格を確認する | 3,310万円 | 10万円/月 | 1K | 23.34m² - |
| 1108 | 3,005万円 | 価格を確認する | 3,310万円 | 10.3万円/月 | 1K | 23.93m² - |
| 1109 | 3,015万円 | 価格を確認する | 3,350万円 | 10.3万円/月 | 1K | 24.01m² - |
| 1110 | 2,928万円 | 価格を確認する | 3,310万円 | 9.9万円/月 | 1K | 23.12m² - |
| 1111 | 3,512万円 | 価格を確認する | 3,780万円 | 11.2万円/月 | 1K | 28.15m² - |
部屋別の参考相場価格とは
※表示価格は弊社独自の参考相場価格であり、実際の価格とは異なります。※こ...


顧客満足度 No.1を受賞しました!
イエシルの販売情報とは
イエシルでは、WEB上で公開されているマンションの販売情報を独自に収集し...年月 | 価格 | m²単価 | 階数 | 専有面積 | 間取り | 当時の築年数 |
|---|---|---|---|---|---|---|
| ????/?? | ??????万円 | ???万円/m² | ??階 | ??.??m² | ??? | 築??年 |
| ????/?? | ??????万円 | ???万円/m² | ??階 | ??.??m² | ??? | 築??年 |
| 2021/03 | 新築3,240万円 | 140万円/m² | 9階 | 23.12m² | 1K | -- |
| 2021/03 | 新築3,270万円 | 136万円/m² | 9階 | 24.01m² | 1K | -- |
| 2021/03 | 新築3,220万円 | 134万円/m² | 9階 | 23.93m² | 1K | -- |
| 2021/03 | 新築3,280万円 | 135万円/m² | 9階 | 24.27m² | 1K | -- |
| 2021/03 | 新築3,350万円 | 129万円/m² | 9階 | 25.95m² | 1K | -- |
| 2021/03 | 新築3,220万円 | 136万円/m² | 9階 | 23.63m² | 1K | -- |

売買履歴とは
リブセンスが独自に収集・提供を受けた情報をもとに、成約価格・新築分譲価格...
みんなで作るイエシル
イエシルは価格の情報を収集中です。成約価格、販売価格をご存じの方はご協力よろしくお願いします。協力する
資産性スコアとは
各マンションの参考相場価格の推移や㎡単価など、様々な角度から分析し、イエ...新築騰落率
92%築5年新築時価格
3,390万円-275万円新築騰落率とは
新築時騰落率とは、各部屋の新築時販売価格から現在の参考相場価格を比較した...参考相場価格
3,115万円99万円前年比
価格推移と将来予測とは
機械学習から算出された参考相場価格の過去記録と将来予測をグラフに表したも...資産性
日ノ出町
築年が経過すると価格が大きく下がる傾向があるので、売却を考えるなら早めの方が良いと感じました。
防災・安全性
桜木町
駅周辺は夜でも明るく人通りが多いので、女性でも安心して歩けます。防犯カメラも多く設置されていて治安面で不安はありません。
地域コミュニティ
中区は観光地が多くて人の出入りが激しいので、近所付き合いは希薄になりがちですが、地域のイベントやお祭りが定期的に開催されていて、子ども連れの家族も多く参加しています。住民同士の交流は少ないも...
教育環境
中区の学校は行事が盛んで、先生も明るく楽しい雰囲気です。交通の便も良く、通学しやすいのが助かっています。
口コミとは
実際の利用者の声をもとにAIが生成した参考コンテンツです。口コミの内容は...京浜急行本線日ノ出町駅より徒歩3分の距離にあるこちらのマンションは、駅から至近距離でバスや車で駅まで通うケースのような渋滞の心配がありません。また、首都圏有数のターミナル駅である横浜駅へも乗車時間5分以内で買い物やお出かけにも便利です。築5年でほぼ新築といえ、RC造り、11階建て総戸数109戸の今人気の大規模マンションで、共用スペースも充実しています。
| 建物名 | ZOOM横浜桜木町(ズームヨコハマサクラギチョウ) |
|---|---|
| 住所 | 神奈川県横浜市中区宮川町3丁目74-1 |
| アクセス |
|
| 築年数 | 築5年 |
| 階建(総戸数) | 11階建(109部屋) |
| 建築構造 | RC造 |
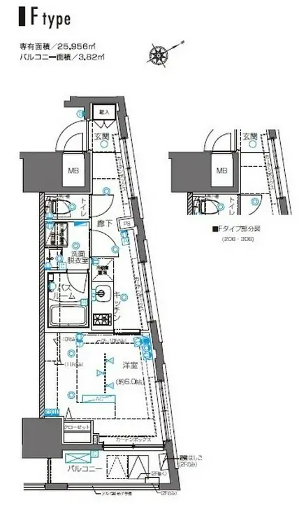
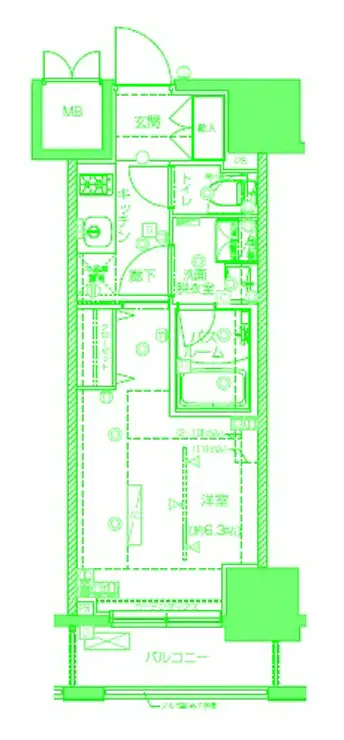
| 専有面積 | 22.51㎡〜30.04㎡ |
| 新築時価格 | 2910万円〜3780万円 116.8万円/m²〜143.2万円/m² 平均:3203万円/m² |
| 参考相場価格 |
|
| 参考相場価格の坪単価 | 397万円/坪〜419万円/坪 |
| 想定賃料 | 9.1万円〜11.3万円/月 |
| 敷地利用権 | 土地権利:所有権 借地期限:- 地代(月額㎡単価)※1:- |
| 用途地域 | 商業地域 |
| 資産性スコア |
| 駐車場・駐輪場 |
|
|---|
| 駐車場 | 26台 駐車費※1:-/月 ~ -/月 駐車設置率:24% |
|---|---|
| バイク置き場 | -台 駐車設置率:-% |
| 駐輪場 | -台 駐輪場設置率:-% |
| 管理会社 | (株)トーシンコミュニティー |
|---|---|
| 管理費※1 | 月328円/m² |
| 修繕積立金※1 | 月136円/m² |
| 管理準備金※1 | 124円/m² |
| 修繕積立一時金※1 | 4445円/m² |
※管理費や修繕積立金、地代の正確な金額は各管理会社にてご確認ください。
※1 新築時の金額になります。
| 間取り | 専有面積 (中央値) | 参考相場価格 (中央値) | 日ノ出町駅 平均 |
|---|---|---|---|
| 1K | 24.01m² | 2,970万円 | 2,095万円 |
| 1DK | 30.04m² | 3,613万円 | 2,563万円 |

ガレリア グランデ
2LDK 江東区・有明テニスの森駅

オークプレイス豊洲
3LDK 江東区・豊洲駅

ザ コスギタワー
2LDK 川崎市中原区・武蔵小杉駅
※各物件の新築時の販売価格を想定購入価格として表示しています。