パークアクシス蒲田ステーションゲート 外観

パークアクシス蒲田ステーションゲート

大田区・蒲田駅 徒歩3分・築13年

上位5%
4.43
上位5%

販売中(0件)

販売中の物件はありません
この条件の物件をお探しですか?
無料登録をすると閲覧履歴に基づく販売情報をお知らせします。
お知らせを受け取る

賃貸物件

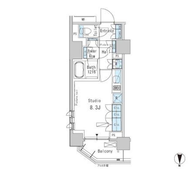
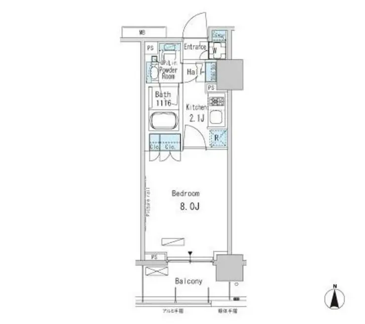
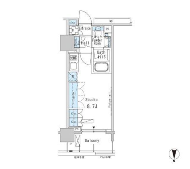
パークアクシス蒲田ステーションゲート

イエシルの販売情報とは

イエシルでは、WEB上で公開されているマンションの販売情報を独自に収集し...

PR近隣の販売中物件

パークアクシス蒲田ステーションゲート

投資物件診断

パークアクシス蒲田ステーションゲート利回り・空室率を診断します。

パークアクシス蒲田ステーションゲートを見た人は、こんな中古マンションも見ています

パークアクシス蒲田ステーションゲートの駅、市区町村、学区を知る

大田区のマンション

モノづくり起点であり、国際線ターミナルとなった羽田空港によって観光産業も注目されている大田区のマンション。大田区は23区の中で面積が広い区として有名で、町工場が多い蒲田や大森地域と、高級住宅地としての田園調布が混在する地域です。大田区のマンションは庶民的で住みやすいという点で評価が高い地域が多いです。物価も比較的安く、子育て、子どもに関する支援も充実しています。広い大田区ですが、交通の便は地域によって様々です。JR京浜東北線が利用できる大森、蒲田エリアのマンションは人気ですが、バス利用や京浜急行電鉄を利用する地域は不便を感じる方も多いようです。

蒲田駅のマンション

蒲田駅は東京都大田区にあり、JR京浜東北線と東急池上線、多摩川線が乗り入れています。また、近くには京急蒲田駅もあり、空港へのアクセスが良いことに加え、駅ビルのアトレや東口商店街など日々のお買い物にも便利なエリアです。駅前は居酒屋やラーメン屋などが多く下町のようなノスタルジックな雰囲気が漂っています。駅から離れると低層マンションが多い、落ち着いた住宅地が広がっています。

その他の最寄り駅: